Italiano
125.000 €

Bilocale arredato a Aosta

Appartamento in vendita • Aosta - Via Jean Claude Mochet, 11
L'agenzia Ultimo Piano Immobiliare propone in esclusiva In casa ristrutturata nel 2007 accogliente bilocale arredato, pronto per essere utilizzato fin da subito.
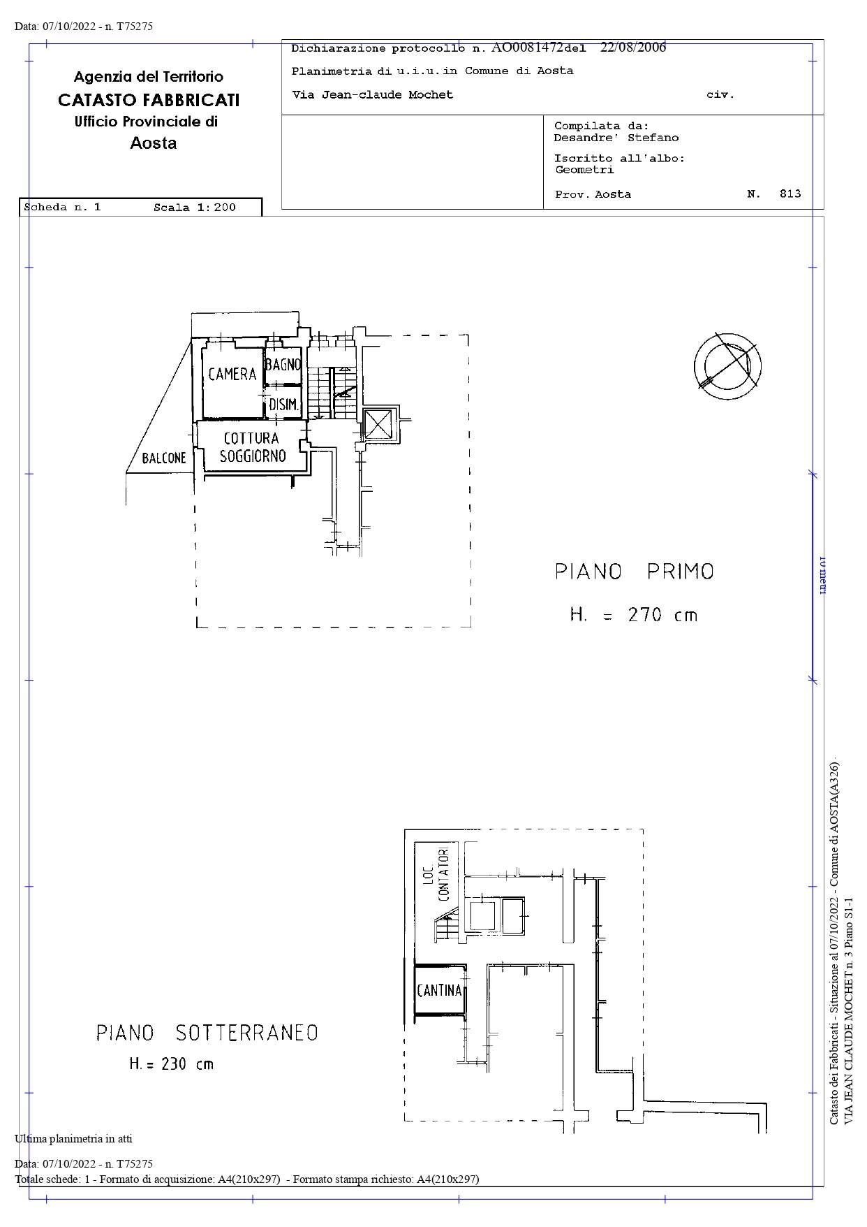
L’alloggio gode di una piacevole esposizione sud-ovest che garantisce buona luminosità durante la giornata ed è composto da:
• soggiorno con angolo cottura
• camera da letto
• bagno
• terrazzino vivibile, perfetto per posizionare un tavolo e mangiare all’aperto.
L’immobile è dotato di caldaia a gas GPL nuova e serramenti con triplo vetro, elementi che contribuiscono a comfort abitativo ed efficienza energetica.
Completano la proprietà:
• garage
• posto auto esterno
• cantina
La posizione è particolarmente comoda: a pochi minuti dalla città di Aosta e molto vicina agli impianti di risalita del comprensorio sciistico di Pila, rendendo questa soluzione interessante sia per utilizzo residenziale sia come punto d'appoggio per raggiungere le località sciistiche.

Se stai cercando un'esperienza immobiliare su misura, noi di Ultimo Piano Immobiliare siamo qui per te. Con un'approfondita indagine sulle tue esigenze, ti aiuteremo a trovare la casa dei tuoi sogni e ti accompagneremo in sicurezza durante tutto il processo di acquisto. Per coloro invece che hanno un immobile da vendere, offriamo un servizio unico nel suo genere di valorizzazione immobiliare, garantendo il massimo risultato in termini di tempo e denaro. La nostra media di recensioni Google testimonia l'eccellenza del nostro servizio. Contattaci oggi stesso e vivi un'esperienza immobiliare senza confronti.
Caratteristiche principali
Codice
V001265
Città
Aosta
Categoria
Appartamento
Prezzo
125.000 €
Locali
2
Camere
1
Bagni
1
Mq
43
Box
1
Mq Box
14
Posti auto
1
Balconi
1
Terrazzi
1
Piano
1
Classe energetica
F
166,12 kWh/m²a
Stato Immobile
Buono
Grado
Signorile
Posizione
Collina
Panorama
Vista Monti
Orientamento
Nord Ovest
Lati Liberi
2
Giardino
Comune
Arredi
Arredato
Tipo Soggiorno
Soggiorno
Tipo Cucina
Angolo Cottura
Riscaldamento
Autonomo
Tipo Riscaldam.
Caldaia a Condensazione
Tipo Impianto
Radiatori
Fonte Energetica
GPL
Acqua Calda
Autonoma
Infissi
Metallo Triplo Vetro
Serramenti
Nuovo
Pavim. Giorno
Ceramica
Pavim. Notte
Parquet
Pavim. Cucina
Ceramica
Pavim. Bagno
Ceramica
Accesso Disabili
Nessuna Barriera
Accesso interno disabili
Pieno accesso
Isolamento
Presente

Accessori: Antifurto, Ascensore, Bagno Handicap, Cancello Elettrico, Impianto Satellitare, Porta Blindata, Zanzariere

Mappa
Via Jean Claude Mochet 11, Aosta (AO)
Consulenti per informazioni
Daniele Gay
Daniele Gay
+39 335 8179679
Valentina Vulcano
Valentina Vulcano
+39 348 9742939
Richiedi informazioni
Invia
Condividi su
Cookie preference