Italiano
430.000 €

Villetta con giardino

Casa singola in vendita • Pollein (Chenières) - Frazione Cheniere, 36
L'agenzia Ultimo Piano Immobiliare propone in esclusiva una villetta dall'ottimo stato di manutenzione, curata e pronta da vivere, situata a Pollein, in Località Chenière, a due passi da tutti i servizi. La casa, costruita nel 2007, si sviluppa su più livelli ed è così composta.
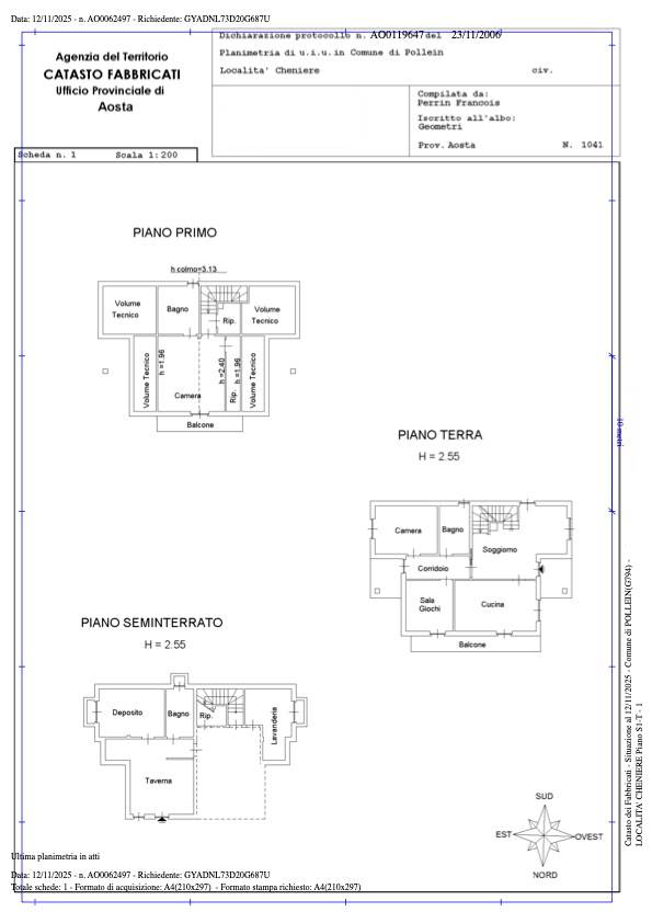
Al piano terra si accede a un luminoso soggiorno adiacente alla cucina semi-abitabile; completano il piano due camere da letto, un disimpegno, un bagno, un ripostiglio e un balcone.
Il piano superiore, mansardato, ospita la camera da letto padronale con cabina armadio e bagno privato.
Al piano seminterrato si trovano diversi spazi accessori, tra cui una taverna con ingresso indipendente, una lavanderia e un bagno.

All’esterno la proprietà è caratterizzata da un ampio giardino molto ben curato che circonda la casa ed è protetto da una folta vegetazione che regala privacy e riservatezza.
Completano la proprietà un comodo box auto e il piazzale antistante la casa ove poter posteggiare comodamente almeno due auto.
Queste caratteristiche rendono la proposta immobilaire appena descritta un'ottima soluzione abitativa per gli amanti dell'indipendenza a pochi minuti dalla città di Aosta.

Se stai cercando un'esperienza immobiliare su misura, noi di Ultimo Piano Immobiliare siamo qui per te. Con un'approfondita indagine sulle tue esigenze, ti aiuteremo a trovare la casa dei tuoi sogni e ti accompagneremo in sicurezza durante tutto il processo di acquisto. Per coloro invece che hanno un immobile da vendere, offriamo un servizio unico nel suo genere di valorizzazione immobiliare, garantendo il massimo risultato in termini di tempo e denaro. La nostra media di recensioni Google testimonia l'eccellenza del nostro servizio. Contattaci oggi stesso e vivi un'esperienza immobiliare senza confronti.
Caratteristiche principali
Codice
V001253
Città
Pollein (Chenières)
Categoria
Casa singola
Prezzo
430.000 €
Locali
9
Camere
3
Bagni
3
Mq
213
Mq Box
23
Balconi
2
Piano
Terra
Classe energetica
F
249,5 kWh/m²a
Stato Immobile
Ottimo
Grado
Signorile
Posizione
Collina
Panorama
Vista Aperta
Orientamento
Nord Ovest Sud Est
Lati Liberi
4
Giardino
Privato
Arredi
Non Arredato
Tipo Soggiorno
Soggiorno
Tipo Cucina
Semi Abitabile
Riscaldamento
Autonomo
Tipo Riscaldam.
Caldaia
Tipo Impianto
Radiatori
Fonte Energetica
Metano
Acqua Calda
Autonoma
Raffrescamento
No
Infissi
Legno Doppio Vetro
Serramenti
Buono
Pavim. Giorno
Laminato
Pavim. Notte
Parquet
Pavim. Cucina
Laminato
Pavim. Bagno
Ceramica
Accesso Disabili
No

Accessori: Antifurto, Camino, Cassaforte, Cancello Elettrico, Doppi Vetri, Fibra Ottica, Impianto Satellitare, Ripostiglio, Tavolini Esterni

Mappa
Frazione Cheniere 36, Pollein (AO)
Consulenti per informazioni
Daniele Gay
Daniele Gay
+39 335 8179679
Richiedi informazioni
Invia
Condividi su
Cookie preference