Italiano
108.000 €

Terreno edificabile a Saint Christophe

Terreno Edificabile in vendita • Saint Christophe - Località Sorreley
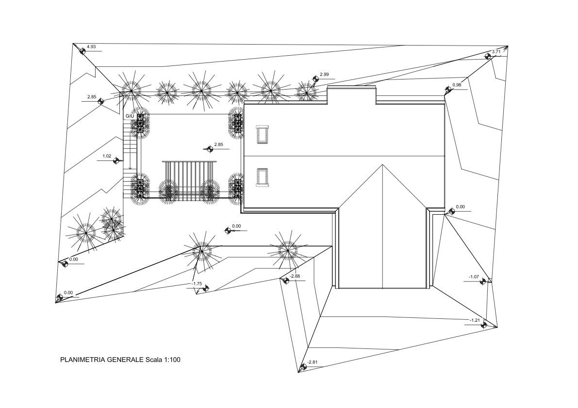
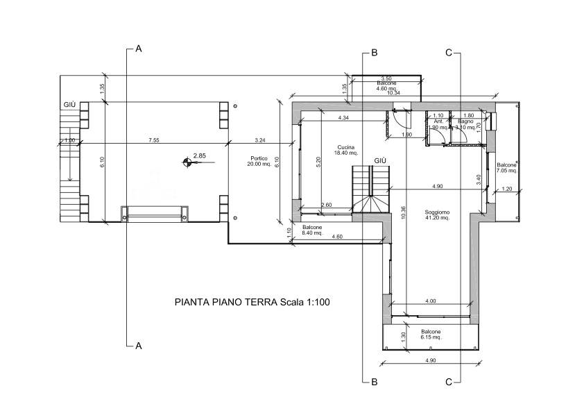
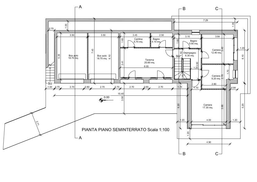
L'agenzia immobiliare Ultimo Piano propone in esclusiva terreno edificabile a Saint-Christophe in Località Sorreley, zona facilmente raggiungibile, con ottima esposizione al sole. L'appezzamento in questione ricade nella zona "C4" del vigente Piano Regolatore Generale Comunale, ha una superficie catastale di mq 646 e porta una capacità edificatoria pari a 154,4 mq (derivanti anche dall'acquisto di volumetria di un appezzamento nelle vicinanze). Possibilità di realizzo di una villa singola o bifamiliare.
Se stai cercando un'esperienza immobiliare su misura, noi di Ultimo Piano Immobiliare siamo qui per te. Con un'approfondita indagine sulle tue esigenze, ti aiuteremo a trovare la casa dei tuoi sogni e ti accompagneremo in sicurezza durante tutto il processo di acquisto. Per coloro invece che hanno un immobile da vendere, offriamo un servizio unico nel suo genere di valorizzazione immobiliare, garantendo il massimo risultato in termini di tempo e denaro. La nostra media di recensioni Google testimonia l'eccellenza del nostro servizio. Contattaci oggi stesso e vivi un'esperienza immobiliare senza confronti.
Caratteristiche principali
Codice
V001214
Città
Saint Christophe
Categoria
Terreno Edificabile
Prezzo
108.000 €
Locali
646
Mq
646
Classe energetica
Non applicabile
Grado
Signorile
Panorama
Vista Aperta
Indice Edificabilià
0,20
Mappa
Località Sorreley , Saint Christophe (AO)
Consulenti per informazioni
Daniele Gay
Daniele Gay
+39 335 8179679
Jessica Pronesti
Jessica Pronesti
+39 347 7856400
Valentina Vulcano
Valentina Vulcano
+39 348 9742939
Richiedi informazioni
Invia
Condividi su
Cookie preference